W dniu 3 lutego 2026 r. podczas Forum Designu i Architektury, które odbywa się w ramach targów BUDMA 2026 nastąpiło rozstrzygnięcie OGÓLNOPOLSKIEGO studenckiego konkursu architektonicznego koncepcyjnego dwóch kamienic na poznańskich Jeżycach i uroczyste odczytanie werdyktu sądu konkursowego.
Przedmiotem Konkursu było opracowanie koncepcji urbanistyczno-architektonicznej dwóch kamienic mieszkalnych na poznańskich Jeżycach. Łącznie na konkurs wpłynęło 70 prac, a Jury postanowiło nagrodzić 4 (1 nagroda oraz 3 wyróżnienia).
Celem Konkursu było uzyskanie najlepszej odpowiedzi na pytanie – jak powinna wyglądać modelowa, socjalna zabudowa mieszkaniowa w sercu historycznej dzielnicy miasta Poznania?
Wśród czterech nagrodzonych projektów dwa, które uzyskały wyróżnienia zostały zrealizowane przez studentów Wydziału Architektury Politechnika Poznańska.
Numer pracy: 080717
Autorzy pracy: Magdalena Ryglewicz, Weronika Konieczek, Martyna Białek
Uczelnia: Politechnika Poznańska, Wydział Architektury, kierunek Architektura
Rok Studiów: III
Uzasadnienie:
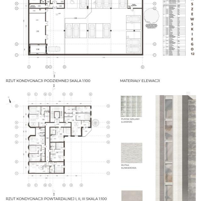
To bardzo dojrzały projekt konkursowy, odpowiadający na większość stawianych wymogów regulaminu. Projekt w sposób harmonijny i precyzyjny wpisuje się w kontekst istniejącej zabudowy pierzowej. Zarówno w odniesieniu do funkcji jak i formy stanowi ciekawe podejście do twórczej odpowiedzi na uzupełnienie istniejącej tkanki – struktury urbanistycznej tej części Jeżyc.
Delikatne wycofanie stref wejściowych z linii pierzei nie jest przypadkowe, to świadome działanie, budujące formę i podziały elewacyjne, dało to ono w konsekwencji projektu kamienicy narożnej niespotykany i bardzo ciekawy pomysł na zbudowanie nieoczywistej formy budynku. Natomiast w drugim budynku wycofanie strefy wejściowej w konsekwencji dało nie banalne połączenie budynków różnej wysokości nowoprojektowanym – zamykając bardzo ciekawie kompozycję tej części pierzei ulicy.
Detal w projekcie podkreśla formę budynków. Prostota detalu zdaniem jury bardzo dobrze nawiązuje do sąsiedniej zabudowy, linearność gzymsów, wielkość i odwzorowanie proporcji otworów okiennych tworzy nić powiązań z zabudową sąsiednią podkreślając jednocześnie proporcje fasad w zaprojektowanych budynkach. Detal balustrad, obramowań otworów okiennych idealnie dopełnia swoją delikatnością ceglaną fasadę. Natomiast zastosowanie luksferów w zwieńczeniu narożnej kamienicy stanowi bardzo ciekawą propozycję nadając formie lekkości. Ten sam materiał użyty w drugim budynku wzbudza trochę więcej kontrowersji pokazując jednak konsekwencje w utrzymaniu jednolitej formy elewacji jako materiału przewodniego dla projektu. Duże uznanie dla projektu zagospodarowania terenu. Zaproponowane rozwiązania zdają się być możliwe do zrealizowania a projekt zieleni pokazuje, że nie odstaje on poziomem od reszty opracowania.
Koncepcja obydwu budynków stanowi bardzo ciekawą propozycję uzupełnienia tej części Jeżyc w budynki o ponad czasowym charakterze. To dobra propozycja pokazująca duży twórczy potencjał autora projektu.
Numer pracy: 478478
Autorzy pracy: Gabriela Kobylarz
Uczelnia: Politechnika Poznańska, Wydział Architektury, kierunek Architektura
Rok Studiów: III
Uzasadnienie:
Sąd Konkursowy przyznał wyróżnienie pracy, która w sposób kompleksowy i świadomy podejmuje temat współczesnej zabudowy mieszkaniowej o funkcji społecznej, wpisanej w kontekst historycznych Jeżyc. Projekt wyróżnia się konsekwentnie prowadzoną ideą architektoniczną, łączącą nowoczesne środki wyrazu z poszanowaniem skali, rytmu i charakteru istniejącej zabudowy. Na szczególną uwagę zasługuje umiejętne kształtowanie przestrzeni wspólnych oraz dziedzińca jako miejsca integracji międzysąsiedzkiej, sprzyjającego budowaniu relacji społecznych. Autorzy zaproponowali rozwiązania funkcjonalne o wysokiej elastyczności, odpowiadające zróżnicowanym potrzebom użytkowników, przy jednoczesnym uwzględnieniu zasad projektowania uniwersalnego. Projekt w czytelny sposób realizuje również założenia proekologiczne, m.in. poprzez zastosowanie błękitno-zielonej infrastruktury oraz rozwiązań wspierających zrównoważoną mobilność. Niestety, w ramach zaproponowanej struktury mieszkań, nie zaprojektowano jednostek z wydzielonymi kuchniami.
Gratulujemy pozostałym nagrodzonym - kolegom studentom z Wydziału Architektury Politechniki Gdańskiej oraz Politechniki Śląskiej.
